No items found.
No items found.
No items found.
No items found.
Amsterdam
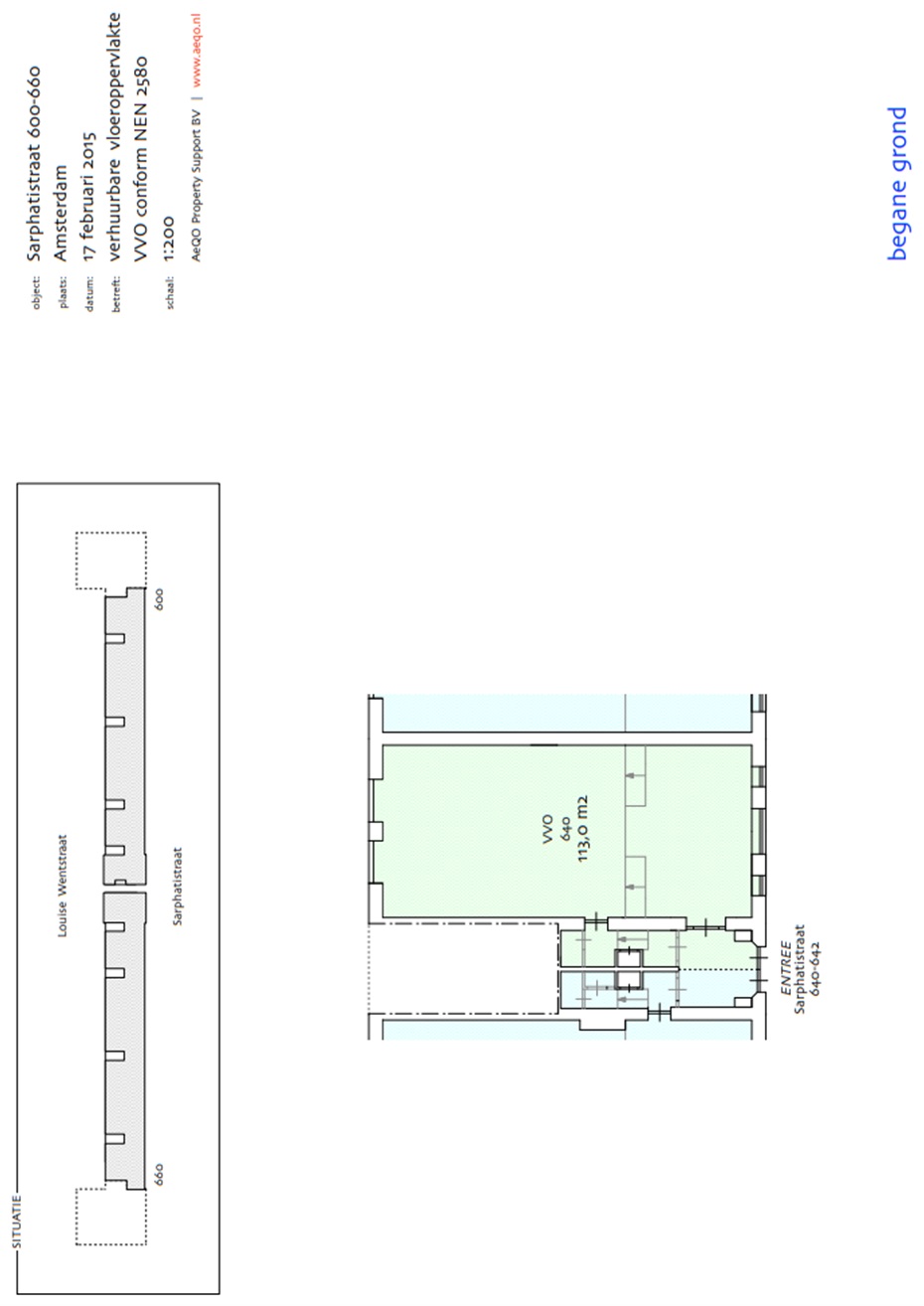
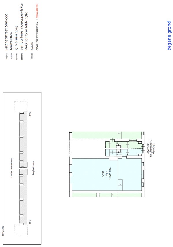
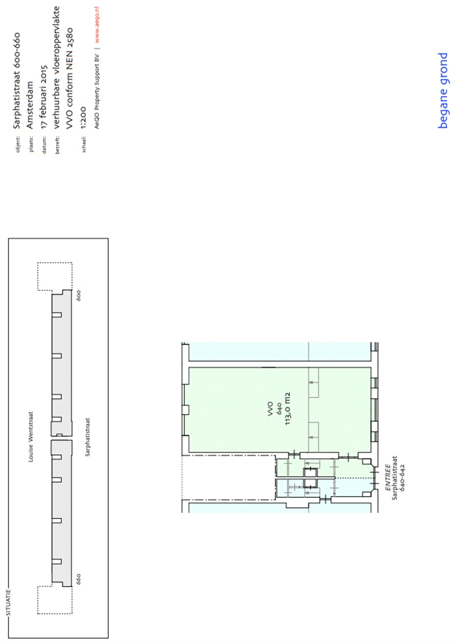
Sarphatistraat 640-642
KANTOORUNITS MET EIGEN VOORDEUR EN ENTREE.
Geen opslag algemene meters.
Algemeen en omgeving
De ‘Oranje-Nassau Kazerne’ is gelegen in het centrum van Amsterdam aan de oostzijde van de binnenstad en gebouwd omstreeks 1810. Het betreft een rijksmonument waarin op de begane grond en in het souterrain kantoorruimten gerealiseerd zijn.
Het object verkeerd in een algeheel goede staat van onderhoud en de kantoorunits beschikken over alle voorzieningen voor het huidig gebruik als kantoor.
Alle units betreffen zelfstandige units met een eigen entree. Het riante uitzicht, de grote ramen en de hoge plafonds zorgen voor de ideale kantoorruimte in de levendige omgeving van Amsterdam-Oost.
De Kazerne is gelegen in de populaire buurt De Plantage. Een groot aantal bijzondere plekken zoals, Artis Zoo, Hortus Botanicus en het Tropenmuseum bevinden zich in de directe omgeving.
Dichtbij de locatie zit een grote supermarkt, liggen diverse restaurants & cafés (Louie Louie, De Groene Olifant, Brouwerij ’t IJ en Spirit) en hotels (Pillows, Arena en Hyatt).
Bereikbaarheid
Met eigen vervoer
Het complex is centraal gelegen nabij de afslagen S112 (Wibautstraat), S113 (Linnaeusstraat) en S114 (Piet Heintunnel) met toegang tot de ringweg A10, waardoor de ‘Oranje Nassau Kazerne’ per auto goed bereikbaar is.
Het openbaar vervoer
Met het openbaar vervoer is het complex uitstekend te bereiken. De haltes van de bussen 22 en 43 en de trams 7, 9, 10 en 14 en het Station Muiderpoort en het Metrostation Weesperplein zijn gelegen in de nabije omgeving.
Treinstation Amsterdam Centraal ligt op 13 minuten afstand en biedt directe verbindingen naar Schiphol (13 min.), Rotterdam (41 min.) en Den Haag (46 min.) Wijzigingen voorbehouden, voor de meest actuele dienstregeling zie: 9292ov.nl.
Oppervlakte
Circa 225 m² v.v.o. op de begane grond
Bovenstaande metrages zijn vastgesteld conform de NEN 2580 meetmethode voor verhuurbare oppervlakten.
Huurprijs
€ 345,- per m² v.v.o. per jaar, te vermeerderen met BTW.
Parkeren
Parkeren langs de openbare weg is mogelijk en tevens zijn er meerdere betaald parkeren mogelijkheden in de omgeving zoals bijvoorbeeld Parkee.
Opleveringsniveau
De kantoorruimte wordt opgeleverd in de huidige staat, onder andere voorzien van:
-eigen voordeur en entree;
-huidige scheidingswanden;
-huidige vloerafwerking;
-aanwezige kabelgoten;
-cv-installatie aangesloten op vloerverwarming;
-toiletgroep(en);
-pantry.
Servicekosten
Een verrekenbaar voorschot van € 25,- per m² v.v.o. per jaar voor de volgende leveringen en diensten:
-eigen elektra en gas gebruik
-huismeester
-glasbewassing buitenzijde
-onderhoud technische installaties
-assurantiepremie glasverzekering buitenglas
-klein onderhoud
-5% administratiekosten
Historie
De Oranje-Nassau Kazerne is een voormalige kazerne aan de Sarphatistraat in het centrum van Amsterdam,
Het vroeg-19e-eeuwse gebouw in classicistische stijl werd gebouwd in opdracht van Napoleon. Keizer Napoleon gaf bevel tot de bouw van een groots gebouw, met ruimte voor 2400 garnizoenstroepen, dat de grandeur van zijn keizerrijk kon uitstralen.
Het gebouw was een onderdeel van de Hollandse Waterlinie om Amsterdam tegen buitenlandse invallers te beschermen.
In 1813 stond de kazerne klaar, maar niet lang daarna trokken de Fransen zich terug uit Nederland. Het gebouw kreeg de nieuwe naam Oranje-Nassau Kazerne, naar het Huis Oranje-Nassau dat in 1814 het koningshuis van Nederland werd. Het wapenschild van Napoleon op het centrale fronton werd vervangen door het wapenschild van de Oranjes. Op de frontons aan de zijgevels werd de Franse adelaar vervangen door de Nederlandse leeuw.
Nadat de laatste troepen in 1987 het gebouw verlieten, lagen er plannen om de kazerne te slopen, ondanks de status als rijksmonument die het gebouw in 1970 verkreeg.
Na protesten van buurtbewoners en Monumentenzorg kwam er een plan voor de restauratie en verbouw van het gebouw tot woon- en bedrijfsruimte.
Energielabel
Het gebouw betreft een rijksmonument waarvoor geen labelplicht geldt.
Huurprijsaanpassing
Jaarlijks, op basis van de wijziging van het maandprijsindexcijfer volgens de consumentenprijsindex (CPI) reeks CPI-Alle Huishoudens (2015=100), gepubliceerd door het Centraal Bureau voor de Statistiek (CBS).
Huurtermijn
5 jaar met verlengingen van telkens 5 jaar.
Betaling
Huur, servicekosten en BTW per kwartaal vooruit.
Zekerheidsstelling
Bankgarantie of waarborgsom ter grootte van drie maanden huur inclusief servicekosten en BTW, bankgarantie afgegeven door een erkende Nederlandse bankinstelling.
Aanvaarding
Per direct.
Overige voorwaarden en condities
Huurovereenkomst op basis van het standaardmodel 2015 van de Raad voor Onroerende Zaken (ROZ), zoals gehanteerd door de Nederlandse Vereniging van Makelaars in onroerend goed (NVM).
Voor meer informatie en/of het plannen van een bezichtiging:
Zadelhoff Vastgoedadviseurs B.V.
Antonio Vivaldistraat 2
1083 HP Amsterdam
tel: 020 – 70 581 27
Amsterdam@zadelhoffvastgoedadviseurs.nl
www.zadelhoffvastgoedadviseurs.nl
Adres
Oppervlakte
225
m²
Hoofdfunctie
Kantoorruimte
Status
Beschikbaar
Huurprijs / koopsom
€ 345 per m² per jaar
Aanvaarding
In overleg




























